【路面・飲食可・スケルトン】大阪市西区 新町3丁目 あみだ池筋沿い 路面 飲食可 スケルトン 貸店舗!現状は、2面シャッターあり!飲食店・テイクアウト業種に最適!分譲マンションのため、最終業種審査あります!	
	 
	
	   
	
		
			
				
					
						- 賃料 /
 
						
25万円						  
						
									- 坪単価
 - 20146円/坪
 
								
																- 共益費 /
 - 25000円
 
								
						
								
- 貸店舗
 
								
								
																			 | 
				
										
							
																- 敷金 /
 - 2ヶ月
 
								
																- 礼金 /
 - 3ヶ月
 
								
								
								
								 
								
							 | 
						
							
		
		
			
										
| 
						募集階数 /
														1階 								
										 | 
							- 所在地
  | 
							- 大阪府大阪市西区							新町3丁目
  | 
						
				
										
							- 交通
  | 
							- 大阪メトロ長堀鶴見緑地線 西長堀駅 徒歩3分							
 大阪メトロ千日前線 西長堀駅 徒歩4分							  | 
						
							
		
		
			
													
				- 面積 /
 - 
														13.65坪								
 
											 | 
					
					
											- 物件番号 /
 - B203336
 
								
           
											 | 
																			
												
				
			
		
			
		
	 
 
	
【飲食可・好立地】大阪市北区 梅田2丁目 レトロな飲食複合ビルの1F 飲食可 貸店舗!西梅田エリアにある飲食店が複数入るレトロビル内の希少な1F区画!飲食全般・バーなどに最適(重飲食相談)!	
	 
	
	   
	
		
			
				
					
						- 賃料 /
 
						
25万円						  
						
									- 坪単価
 - 31250円/坪
 
								
																- 共益費 /
 - 50000円
 
								
						
								
- 貸店舗
 
								
								
																			 | 
				
										
							
								
								
																- 保証金 /
 - 10ヶ月
 
								
								
																- 敷引 /
 - スライド
 
								
								 
								
							 | 
						
							
		
		
			
										
| 
						募集階数 /
														1階 								
										 | 
							- 所在地
  | 
							- 大阪府大阪市北区							梅田2丁目
  | 
						
				
										
							- 交通
  | 
							- 大阪メトロ四つ橋線 西梅田駅 徒歩2分							
 JR東西線 北新地駅 徒歩3分							  | 
						
							
		
		
			
		
			
		
	 
 
	
【路面・スケルトン】大阪市浪速区 難波中3丁目 路面 軽飲食可 スケルトン 貸店舗!エディオンアリーナすぐの意外とオフィスなどが多いエリア!業種は相談となります。	
	 
	
	   
	
		
			
				
					
						- 賃料 /
 
						
25万円						  
						
									- 坪単価
 - 26000円/坪
 
								
																- 共益費 /
 - 10000円
 
								
						
								
- 貸店舗
 
								
								
																			 | 
				
										
							
																- 敷金 /
 - 30万円
 
								
																- 礼金 /
 - 50万円
 
								
								
								
								 
								
							 | 
						
							
		
		
			
										
| 
						募集階数 /
														1階 								
										 | 
							- 所在地
  | 
							- 大阪府大阪市浪速区							難波中3丁目
  | 
						
				
										
							- 交通
  | 
							- 大阪メトロ御堂筋線 なんば駅 徒歩5分							
 南海線 難波駅 徒歩6分							  | 
						
							
		
		
			
		
			
		
	 
 
	
【路面・飲食可】大阪市福島区 海老江5丁目 大通り沿い 路面 飲食可 貸店舗!車通りの多い大通り沿いのため、視認性良好!阪神線・JR東西線・千日前線など、複数アクセスの好立地!	
	 
	
	   
	
		
			
				
					
						- 賃料 /
 
						
25万円						  
						
									- 坪単価
 - 14970円/坪
 
								
																- 共益費 /
 - 0円
 
								
						
								
- 貸店舗
 
								
								
																			 | 
				
										
							
																- 敷金 /
 - 3ヶ月
 
								
																- 礼金 /
 - 3ヶ月
 
								
								
								
								 
								
							 | 
						
							
		
		
			
										
| 
						募集階数 /
														1階 								
										 | 
							- 所在地
  | 
							- 大阪府大阪市福島区							海老江5丁目
  | 
						
				
										
							- 交通
  | 
							- JR東西線 海老江駅 徒歩3分							
 阪神本線 野田駅 徒歩4分							  | 
						
							
		
		
			
		
			
		
	 
 
	
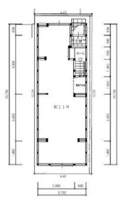
【路面・飲食可・オフィス街】大阪市西区江戸堀1丁目 路面 飲食可 貸店舗!周辺、オフィス多数のため、ランチ需要も高い立地!	
	 
	
	   
	
		
			
				
					
						- 賃料 /
 
						
26万円						  
						
									- 坪単価
 - 32332円/坪
 
								
																- 共益費 /
 - 20000円
 
								
						
								
- 貸店舗
 
								
								
																			 | 
				
										
							
								
																- 礼金 /
 - 3ヶ月
 
								
								
								
								 
								
							 | 
						
							
		
		
			
										
| 
						募集階数 /
														1階 								
										 | 
							- 所在地
  | 
							- 大阪府大阪市西区							江戸堀1丁目
  | 
						
				
										
							- 交通
  | 
							- 大阪メトロ四つ橋線 肥後橋駅 徒歩4分							
 大阪メトロ御堂筋線 淀屋橋駅 徒歩8分							  | 
						
							
		
		
			
													
				- 面積 /
 - 
														8.66坪								
 
											 | 
					
					
											- 物件番号 /
 - B1021072
 
								
           
											 | 
																			
												
				
			
		
			
		
	 
 
	
【路面・飲食可】賃料ダウンしました!大阪市中央区 北久宝寺町1丁目 路面 飲食可 居抜き 貸店舗!カウンター残置のため、その他の飲食業種にも変更可能!多少セットバックしているので、置き看板や前面部での販売も可能!	
	 
	
	   
	
		
			
				
					
						- 賃料 /
 
						
28万円						  
						
									- 坪単価
 - 49036円/坪
 
								
																- 共益費 /
 - 0円
 
								
						
								
- 貸店舗
 
								
								
																			 | 
				
										
							
																- 敷金 /
 - 1ヶ月
 
								
																- 礼金 /
 - 3ヶ月
 
								
								
								
																- 造作譲渡金 /
 - 0円
 
 
								
							 | 
						
							
		
		
			
										
| 
						募集階数 /
														1階 								
										 | 
							- 所在地
  | 
							- 大阪府大阪市中央区							北久宝寺町1丁目
  | 
						
				
										
							- 交通
  | 
							- 大阪メトロ堺筋線 堺筋本町駅 徒歩5分							
 大阪メトロ谷町線 谷町四丁目駅 徒歩10分							  | 
						
							
		
		
			
		
			
		
	 
 
	
【路面・飲食相談可】大阪市中央区 南本町4丁目 路面 飲食相談可 貸店舗!前面道路は、人通り・車通りが多い通りではありませんが、御堂筋線・中央線の本町駅近くは魅力的!周辺、オフィスビル多数のため、ランチ需要あります!	
	 
	
	   
	
		
			
				
					
						- 賃料 /
 
						
28.782万円						  
						
									- 坪単価
 - 20000円/坪
 
								
																- 共益費 /
 - 31980円
 
								
						
								
- 貸店舗
 
								
								
																			 | 
				
										
							
																- 敷金 /
 - 172.692万円
 
								
								
								
								
								 
								
							 | 
						
							
		
		
			
										
| 
						募集階数 /
														1階 								
										 | 
							- 所在地
  | 
							- 大阪府大阪市中央区							南本町4丁目
  | 
						
				
										
							- 交通
  | 
							- 大阪メトロ御堂筋線 本町駅 徒歩2分							
 大阪メトロ四つ橋線 本町駅 徒歩3分							  | 
						
							
		
		
			
													
				- 面積 /
 - 
														15.99坪								
 
											 | 
					
					
											- 物件番号 /
 - A112406
 
								
           
											 | 
																			
												
				
			
		
			
		
	 
 
	
【路面・重飲食可】大阪市中央区 千日前2丁目 路面 重飲食可 貸店舗!千日前通り沿いのとにかく人通りの多い好立地!2坪の極小ですが、ビニールカーテンで席を設置しているので、客席設置も可能!	
	 
	
	   
	
		
			
				
					
						- 賃料 /
 
						
30万円						  
						
									- 坪単価
 - 150000円/坪
 
								
																- 共益費 /
 - 0円
 
								
						
								
- 貸店舗
 
								
								
																			 | 
				
										
							
																- 敷金 /
 - 0ヶ月
 
								
																- 礼金 /
 - 350万円
 
								
								
								
								 
								
							 | 
						
							
		
		
			
										
| 
						募集階数 /
														1階 								
										 | 
							- 所在地
  | 
							- 大阪府大阪市中央区							千日前2丁目
  | 
						
				
										
							- 交通
  | 
							- 大阪メトロ堺筋線 日本橋駅 徒歩2分							
 大阪メトロ千日前線 日本橋駅 徒歩1分							  | 
						
							
		
		
			
		
			
		
	 
 
	
【路面・重飲食可・居抜き】大阪市中央区 大手通2丁目 大通り沿い 路面 重飲食可 居抜き 貸店舗!隣が大手飲食チェーン店のため、相乗効果での集客にも期待できます!一棟貸しのため、重飲食も可能です!	
	 
	
	   
	
		
			
				
					
						- 賃料 /
 
						
30万円						  
						
									- 坪単価
 - 8333円/坪
 
								
																- 共益費 /
 - 0円
 
								
						
								
- 貸店舗
 
								
								
																			 | 
				
										
							
								
								
																- 保証金 /
 - 300万円
 
								
								
																- 敷引 /
 - 30%
 
								
																- 造作譲渡金 /
 - なし
 
 
								
							 | 
						
							
		
		
			
										
| 
						募集階数 /
														1-5階 								
										 | 
							- 所在地
  | 
							- 大阪府大阪市中央区							大手通2丁目
  | 
						
				
										
							- 交通
  | 
							- 大阪メトロ谷町線 谷町四丁目駅 徒歩9分							
 大阪メトロ堺筋線 堺筋本町駅 徒歩9分							  | 
						
							
		
		
			
		
			
		
	 
 
	
【路面・飲食可】大阪メトロ千日前線 桜川駅より徒歩1分!大阪市浪速区 桜川2丁目 路面 スケルトン 軽飲食可 貸店舗!千日前通りに面するため、視認性良好!分譲マンション1Fのため、管理組合による業種審査があります!	
	 
	
	   
	
		
			
				
					
						- 賃料 /
 
						
31.8万円						  
						
									- 坪単価
 - 15611円/坪
 
								
																- 共益費 /
 - 0円
 
								
						
								
- 貸店舗
 
								
								
																			 | 
				
										
							
																- 敷金 /
 - 2ヶ月
 
								
																- 礼金 /
 - 1ヶ月
 
								
								
								
								 
								
							 | 
						
							
		
		
			
										
| 
						募集階数 /
														1階 								
										 | 
							- 所在地
  | 
							- 大阪府大阪市浪速区							桜川2丁目
  | 
						
				
										
							- 交通
  | 
							- 大阪メトロ千日前線 桜川駅 徒歩1分							
 阪神なんば線 桜川駅 徒歩1分							  | 
						
							
		
		
			
													
				- 面積 /
 - 
														20.37坪								
 
											 | 
					
					
											- 物件番号 /
 - F103223
 
								
           
											 |