特選物件 - 大阪 貸店舗 居抜き物件 スケルトン 飲食可店舗はストアーズキッチン! - Page 8

【オフィス街・ワンフロア】大阪市北区 西天満2丁目 ワンフロアワンテナント 軽飲食可・サービス最適 貸店舗!裁判所近くのため、周辺、弁護士事務所や関連する事務所多数!
31.5万円
 15.46坪

※略図のため、現況優先となります。※最新の現況は、内覧にてご確認ください。
物件の詳細を見る
賃料 /
31.5万円
坪単価
20375円/坪
共益費 /
0円
貸店舗
保証金 /
6ヶ月
敷引 /
スライド
募集階数 / 5階
所在地
大阪府大阪市北区 西天満2丁目
交通
JR東西線 北新地駅 徒歩6分
大阪メトロ御堂筋線 淀屋橋駅 徒歩6分
面積 /
15.46坪
物件番号 /
C201246
【路面・重飲食相談】大阪市北区 西天満4丁目 オフィス街 路面 重飲食相談 貸店舗!周辺、弁護士事務所など多数のエリア!ランチ需要の高い立地です!
33万円
 7.41坪

※最新の現況は、内覧にてご確認ください。
物件の詳細を見る
賃料 /
33万円
坪単価
49932円/坪
共益費 /
40000円
貸店舗
敷金 /
72.6万円
礼金 /
33万円
募集階数 / 1階
所在地
大阪府大阪市北区 西天満4丁目
交通
大阪メトロ谷町線 東梅田駅 徒歩6分
JR東西線 北新地駅 徒歩7分
面積 /
7.41坪
物件番号 /
C2014111
【路面・居抜き】大阪メトロ堺筋線・谷町線 南森町駅より徒歩5分!大阪市北区西天満5丁目 路面 オフィス街 喫茶店居抜き 貸店舗!周辺、オフィス多数の立地!重飲食不可ですが、喫茶店やその他の飲食店も可能!
29.0909万円
 19.38坪

※最新の現況は、内覧にてご確認ください。
物件の詳細を見る
賃料 /
29.0909万円
坪単価
15526円/坪
共益費 /
10000円
貸店舗
敷金 /
0ヶ月
礼金 /
2ヶ月
募集階数 / 1階
所在地
大阪府大阪市北区 西天満5丁目
交通
大阪メトロ谷町線 南森町駅 徒歩5分
大阪メトロ堺筋線 南森町駅 徒歩5分
面積 /
19.38坪
物件番号 /
C201529
【路面・居抜き】大阪メトロ谷町線 南森町駅・東梅田駅より徒歩7分!大阪市北区 西天満6丁目 路面 居酒屋 居抜き 貸店舗!オフィス街と繁華街からすぐの立地!ランチ需要なども高い立地!造作譲渡費なしの居抜きのため、低コストで開業可能!
24万円
 16.8坪

※略図のため、現況優先となります。※最新の現況は、内覧にてご確認ください。
物件の詳細を見る
賃料 /
24万円
坪単価
14285円/坪
共益費 /
0円
貸店舗
敷金 /
0ヶ月
礼金 /
3ヶ月
募集階数 / 1階
所在地
大阪府大阪市北区 西天満6丁目
交通
大阪メトロ堺筋線 南森町駅 徒歩7分
大阪メトロ谷町線 東梅田駅 徒歩7分
面積 /
16.8坪
物件番号 /
C201632
【路面・飲食可・スケルトン】大阪市北区 豊崎5丁目 路面 飲食可 スケルトン 貸店舗!城北公園通沿いのため、視認性良好!周辺、オフィスやマンションが多い立地!
22万円
 6.9坪

※略図のため、現況優先となります。※最新の現況は、内覧にてご確認ください。
物件の詳細を見る
賃料 /
22万円
坪単価
31884円/坪
共益費 /
0円
貸店舗
敷金 /
2ヶ月
礼金 /
2ヶ月
募集階数 / 1階
所在地
大阪府大阪市北区 豊崎5丁目
交通
大阪メトロ御堂筋線 中津駅 徒歩1分
面積 /
6.9坪
物件番号 /
C503523
【居抜き】大阪市北区 黒崎町の商店街内ビルの4F 隠れ家 高級寿司店・和食向き 貸店舗!階段で4Fですが、通が好む隠れ家要素満載の貸店舗!業種などはご相談となります!
20万円
 13.31坪

※略図になります。※現況は、内覧にてご確認下さい。
物件の詳細を見る
賃料 /
20万円
坪単価
15026円/坪
共益費 /
0円
貸店舗
敷金 /
50万円
礼金 /
200万円
募集階数 / 4階
所在地
大阪府大阪市北区 黒崎町
交通
大阪メトロ堺筋線 天神橋筋六丁目駅 徒歩4分
大阪メトロ谷町線 中崎町駅 徒歩5分
面積 /
13.31坪
物件番号 /
C411016
【居抜き・飲食可・オフィス街】大阪市中央区備後町1丁目 飲食店座敷 居抜き 貸店舗!匂い・煙強い業種不可ですが、飲食可!オフィス街のため、空中階でもランチなど集客見込めます!和食など内装を活かせる業種であれば、初期投資抑えられます!
15万円
 20.18坪

※最新の現況は、内覧にてご確認ください。
物件の詳細を見る
賃料 /
15万円
坪単価
8919円/坪
共益費 /
30000円
貸店舗
敷金 /
6ヶ月
礼金 /
3ヶ月
募集階数 / 4階
所在地
大阪府大阪市中央区 備後町1丁目
交通
大阪メトロ堺筋線 堺筋本町駅 徒歩6分
大阪メトロ中央線 堺筋本町駅 徒歩6分
面積 /
20.18坪
物件番号 /
A109127
【路面・飲食可】賃料ダウンしました!大阪市中央区 北久宝寺町1丁目 路面 飲食可 居抜き 貸店舗!カウンター残置のため、その他の飲食業種にも変更可能!多少セットバックしているので、置き看板や前面部での販売も可能!
28万円
 5.71坪

※最新の現況は、内覧にてご確認ください。
物件の詳細を見る
賃料 /
28万円
坪単価
49036円/坪
共益費 /
0円
貸店舗
敷金 /
1ヶ月
礼金 /
3ヶ月
造作譲渡金 /
0円
募集階数 / 1階
所在地
大阪府大阪市中央区 北久宝寺町1丁目
交通
大阪メトロ堺筋線 堺筋本町駅 徒歩5分
大阪メトロ谷町線 谷町四丁目駅 徒歩10分
面積 /
5.71坪
物件番号 /
A202101
【居抜き・オフィス街】大阪市中央区 北久宝寺町1丁目 オフィス街 半地下 飲食店 居抜き 貸店舗!大阪メトロ堺筋線 堺筋本町駅より徒歩3分のオフィス街立地!住居・オフィス混合ビルのB1Fのため、集客力良好!
15.4万円
 7坪

※最新の現況は、内覧にてご確認ください。
物件の詳細を見る
賃料 /
15.4万円
坪単価
22000円/坪
共益費 /
0円
貸店舗
敷金 /
0ヶ月
礼金 /
3ヶ月
造作譲渡金 /
相談
募集階数 / B1階
所在地
大阪府大阪市中央区 北久宝寺町1丁目
交通
大阪メトロ中央線 堺筋本町駅 徒歩3分
大阪メトロ堺筋線 堺筋本町駅 徒歩5分
面積 /
7坪
物件番号 /
A202111
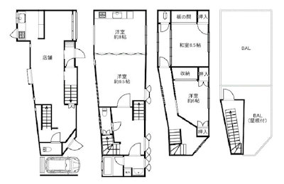
【重飲食可・一棟貸・スケルトン】大阪市中央区千日前2丁目 うらなんば 重飲食可 スケルトン 一棟 貸店舗!1-3F+屋上の一棟貸!重飲食可能なので、様々な業種に対応可能!インバウンド含む、抜群の立地です!
160万円
 45.29坪

※略図のため、現況優先となります。※最新の現況は、内覧にてご確認ください。
物件の詳細を見る
賃料 /
160万円
坪単価
35327円/坪
共益費 /
0円
貸店舗
敷金 /
2ヶ月
礼金 /
3ヶ月
募集階数 / 1-3+R階
所在地
大阪府大阪市中央区 千日前2丁目
交通
大阪メトロ堺筋線 日本橋駅 徒歩1分
大阪メトロ御堂筋線 なんば駅 徒歩6分
面積 /
45.29坪
物件番号 /
A508232

前のページにもどる