東心斎橋2 重飲食可 一棟 貸店舗!物件番号
A5032054
【路面・重飲食可】2025年11月18日申込締め切り!大阪市中央区 東心斎橋2丁目 1-3F一棟 重飲食可 貸店舗!周辺、飲み屋・飲食店多数の繁華街立地!希少な重飲食可のため、様々な業種が可能です!
- 賃料
(税別) - 36万円
- 貸店舗
- 共益費
(税別) - 0円
- 坪単価
- 11396円/坪
- 敷金
- 150万円
- 礼金
(税別) - 150万円
|
|
|
|
| 所在地 | 大阪府大阪市中央区東心斎橋2丁目 |
|---|---|
| 交通 | 大阪メトロ御堂筋線 心斎橋駅 徒歩6分 大阪メトロ堺筋線 長堀橋駅 徒歩7分 |
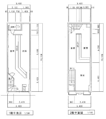
| 面積 | 31.59坪 | ||
|---|---|---|---|
| 募集階数 | 1-3階 | 建物階数 | |
| 引渡/入居時期 | 即時 | 現況 | 閉店済 | 前(現)業種 | 居酒屋 |
| おすすめ業種 | 居酒屋・飲食全般・重飲食可 | ||
| 引渡し状態 | 居抜き(現状渡し) | ||
| 条件・設備 | 飲食 重飲食 軽飲食 深夜営業 繁華街 居抜き 一棟貸し 路面店舗 ◇厨房 ◇トイレ | ||
| 周辺環境 | 周辺、飲食店多数の繁華街!夜の街です! | ||
| 掲載開始 | 2025/11 | ||
前:居酒屋/1-3F計31.59坪/重飲食可/現状渡し(3F内装解体予定)/火災保険・保証会社:加入要/※同時申込受付物件のため、賃貸条件が変更となる場合がございます。/※詳細・内覧希望などは、お気軽にお問い合わせください。
※物件掲載内容と現況が異なる場合は現況を優先致します。
お問合せ時に既に成約している場合がございます。
お問合せ時に既に成約している場合がございます。








