中央市場すぐ 1F マッサージ店 貸店舗!物件番号
H103405
【路面・居抜き】大阪市福島区 野田4丁目 路面 マッサージ店 居抜き 貸店舗!中央卸売市場すぐの立地!マッサージ店居抜きのため、エステサロンなどへの転用可!業種変更も可能のため、飲食も可能!
- 賃料
(税別) - 20万円
- 貸店舗
- 共益費
(税別) - 5000円
- 坪単価
- 14060円/坪
- 敷金
- 1ヶ月
- 礼金
(税別) - 3ヶ月
|
|
|
|
| 所在地 | 大阪府大阪市福島区野田4丁目 |
|---|---|
| 交通 | JR大阪環状線 野田駅 徒歩8分 大阪メトロ千日前線 玉川駅 徒歩8分 |
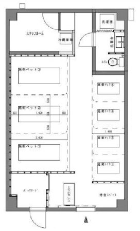
| 面積 | 14.58坪 | ||
|---|---|---|---|
| 募集階数 | 1階 | 建物階数 | |
| 引渡/入居時期 | 相談 | 現況 | 閉店済 | 前(現)業種 | マッサージ店 |
| おすすめ業種 | 整体・接骨院・マッサージ・エステ・美容サロンなど | ||
| 引渡し状態 | 居抜き(現状渡し) | ||
| 条件・設備 | 美容室・エステ 飲食 軽飲食 医療 事務・教室 物販・サービス 居抜き 路面店舗 ◇トイレ ◇空調設備 | ||
| 周辺環境 | 中央卸売市場すぐ!周辺、住宅なども多数の立地! | ||
| 掲載開始 | 2026/3 | ||
前:マッサージ店/居抜き/現状渡し:残置/業種変更可/飲食可/火災保険・保証会社:加入要/※詳細・内覧希望などは、お気軽にお問い合わせください。
※物件掲載内容と現況が異なる場合は現況を優先致します。
お問合せ時に既に成約している場合がございます。
お問合せ時に既に成約している場合がございます。










