桜川駅近く 路面 カフェ 居抜き 貸店舗!物件番号
F101219
【路面・居抜き】賃料ダウン!大阪市浪速区 幸町2丁目 路面 ベーカリーカフェ 居抜き 貸店舗!大阪メトロ 千日前線 桜川駅より徒歩2分!周辺、マンションなどが多い立地!堀江エリアからの集客も可能!
- 賃料
(税別) - 39.8万円
- 貸店舗
- 共益費
(税別) - 0円
- 坪単価
- 17471円/坪
- 敷金
- 10万円
- 礼金
(税別) - 1.5ヶ月
- 造作譲渡金
(税別) - 相談
|
|
|
|
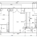
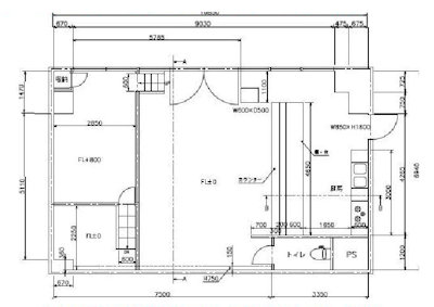
| 所在地 | 大阪府大阪市浪速区幸町2丁目 |
|---|---|
| 交通 | 大阪メトロ千日前線 桜川駅 徒歩2分 阪神なんば線 桜川駅 徒歩2分 |
| 面積 | 22.78坪 | ||
|---|---|---|---|
| 募集階数 | 1階 | 建物階数 | |
| 引渡/入居時期 | 相談 | 現況 | 営業中 | 前(現)業種 | ベーカリーカフェ |
| おすすめ業種 | カフェ・軽飲食・ベーカリーなど | ||
| 引渡し状態 | 居抜き(造作譲渡費あり) | ||
| 条件・設備 | 飲食 軽飲食 間口広 テイクアウト 居抜き 路面店舗 住宅街 ◇グリストラップ ◇カウンター ◇厨房 ◇看板スペース ◇冷蔵庫 ◇トイレ ◇空調設備 | ||
| 周辺環境 | 周辺、マンション多数の立地!堀江エリアからの集客も可能! | ||
| 掲載開始 | 2026/2 | ||
現:ベーカリーカフェ/居抜き/造作譲渡費:相談/エアコン・トイレ:残置/業種:分譲のため、管理組合の審査あり/営業時間:8~22時まで/定借:10年/短期解約違約金あり/火災保険・保証会社:加入要/※詳細・内覧希望などは、お気軽にお問い合わせください。
※物件掲載内容と現況が異なる場合は現況を優先致します。
お問合せ時に既に成約している場合がございます。
お問合せ時に既に成約している場合がございます。










